As a top Brisbane buyers agent, we’ve always got our finger on the pulse of the Brisbane property market. Check out what’s happening in Cannon Hill.
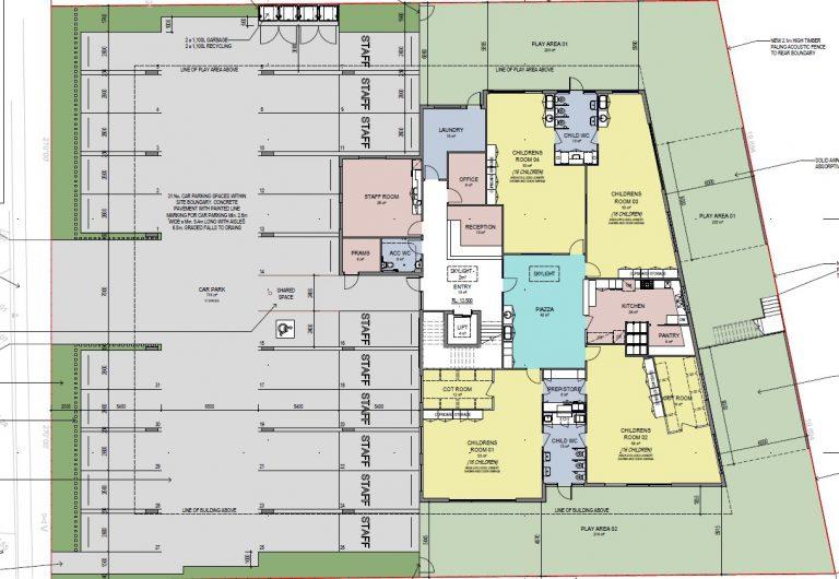
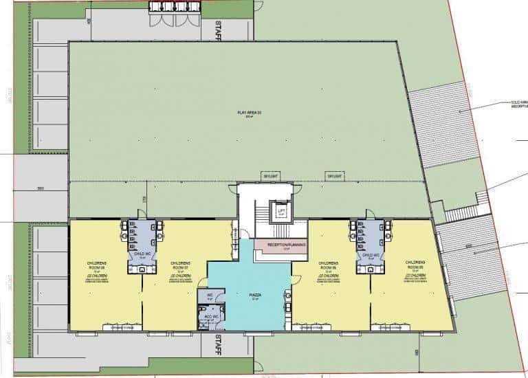
A childcare centre could be built at 918-924 Wynnum Road in Cannon Hill, with current damaged dwellings to be demolished to make way for the development.
The proposed two-storey centre would cater for 152 children, and operate from 6am to 7pm.
It would have ground and elevated outdoor play areas, undercover play areas, eight activity rooms and a multipurpose room, along with 31 car parks.
Market Snapshot – Cannon Hill
| Median house price | House average annual price growth | Houses sold over past 12 months | Median Unit price | Unit average annual price growth | Units sold over the past 12 months | Population | Median age of residents | % of renters |
| $1,200,000 | 41.18% | 132 | $475,000 | 5.56% | 82 | 6,701 | 34 | 37.8% |
Source: CoreLogic, ABS 2021 Census
Would you like help with your next Brisbane home or investment property purchase?
As a Brisbane buyers agent focused on the best results for our clients we’ll help you make a smart buying decision on your next property purchase. We act independently and only select homes that meet our strict ‘smart buying’ criteria.
Our clients regularly tell us they engaged us because they were frustrated by their Brisbane property search. They were sick of wasting their time at weekend open homes and in the evenings – time that could be better spent with their loved ones.
We’d love to help you make your next Brisbane property investment or home purchase.
FREE session: “Brisbane Buyers Agent Insight Session”
Imagine being crystal clear on what’s most important to you, so you can buy a property that sets you up best financially and lifestyle-wise. Book a free Brisbane Buyers Agent Insight session today. In this session, we’ll help you get clear on your Buying Brief. We’ll also give you some insight into hot Brisbane property opportunities available right now.
This session is valuable to home buyers, investors, and first home buyers.
You’ll leave our session knowing exactly the type of property you need to grow a strong financial future and property portfolio.
To book your “Brisbane Buyers Agent Insight Session” register at the form to the right of this blog, call 0409 499 034 or email paul@brisbanebuyersagency.com.au


